| SOLIDWORKS Electrical | 电气设计神器!接线不再头疼!教你快速生成电线清单报表,精准又方便 | |
电气项目原理图设计完成后,如何准确地获取每根电线的清单,方便线材的制作及接线,快来试一试SOLIDWORKS Electricl一键导出电线清单的功能,让你的工作快准稳,事半功倍。 | |
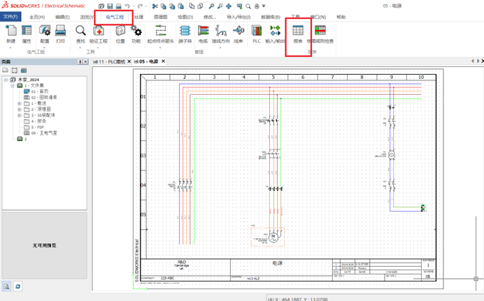
1、启用报表:点击菜单栏【电气工程】,选择【报表】
2、 选择左侧【按线类型的电线清单】,在右侧列表中即可预览清单,然后点击【生成图纸】或者【导出 Excel/Txt/XML】
3、导出清单到图纸:选择【生成图纸】,在弹出的报表图纸目标中选择对应文件集中的报表类别,在右侧三个点按钮中选择输出到文件夹的位置,点击确定
4、电线清单报表:在页面管理器中对应的文件目录中,双击打开【按线类型的电线清单】,打开图纸,清单按照电线类型分类生成对应的清单,包含电线编号、线径、源、目标、线缆长度等信息,报表格式也可进行自定义。
更多了解请关注视频号查看更多视频内容
| |
申请软件免费试用
服务热线:
400-098-9660
邮 箱:
luowei@xa3ds.com
官 网:
https://xa3ds.com
地 址:
西安市雁塔区西沣北路1159号万科汇智中心2211室
扫码关注我们
关注公众号
添加公司微信




