电气人必备! 插入动态PLC
通过插入动态PLC,可以更加灵活的分配PLC IO图纸
1. 打开一张原理图,用于动态PLC图纸的生成,点击【电气工程】,选择【PLC】,在弹出的【PLC管理】窗口点击【插入PLC】。

2. 可以选择新建PLC或选择现有PLC

3. 选择要插入的PLC,点击【选择】按钮

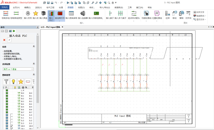
4. ,可以选择PLC的配置,自由选择要插入PLC端口,左侧方框打钩即表示插入当前端口

5. 选择每个通道的宏,也可以调整当前PLC的通道方向,在图纸中鼠标移动到合适的位置点击鼠标左键,PLC图纸插入完成

6. 默认继续插入剩下的端口图纸,可以关闭当前插入动态PLC,打开下一张原理图,点击【插入PLC】,选择【确定要继续绘制】

7. 继续绘制剩下的PLC图纸

申请软件免费试用
服务热线:
400-098-9660
邮 箱:
luowei@xa3ds.com
官 网:
https://xa3ds.com
地 址:
西安市雁塔区西沣北路1159号万科汇智中心2211室
扫码关注我们
关注公众号
添加公司微信